Découvrez comment un management de projet structuré optimise la conversion des nuages de points en maquettes numériques BIM pour la réhabilitation.
Conversion Nuage de points → Maquette Numérique (BIM)
Management de projet normé (ISO 19650 / ISO 9001), pipeline Scan-to-BIM industrialisé, contrôle métrologique & sémantique LOD 300–500. Réhabilitation de sites complexes, patrimoine, industriel.
S3D Engineering United® — Réseau européen certifié ISO 9001
Pipeline Scan-to-BIM standardisé
Un processus industrialisé, piloté par un BIM Execution Plan (BEP) et un management projet conforme ISO 19650 / ISO 9001, garantissant reproductibilité, traçabilité et interopérabilité (IFC 4.x).
1) Acquisition 3D
- FARO Focus S150/S300, FARO Blink (HDR/Color)
- Géoréférencement GNSS/RTK, cibles sphériques
- Densité visée ≥ 10 000 pts/m²
2) Enregistrement & QA métrologique
- Moindres carrés, RMS ≤ 2–3 mm
- Nettoyage / débruitage, contrôle dérive
- Exports E57 / RCP + rapport d’erreurs
3) Modélisation sémantique
- Revit/Archicad – LOD 300 → 500
- Familles/gabarits normalisés, codification
- IFC 4.x (EN ISO 16739) interopérable
4) Contrôles croisés
- Comparatif nuage ↔ modèle (déviation)
- Clashs Navisworks / Verity (si requis)
- Checklists LOD / attributs IFC
5) Publication sécurisée
- United3D.tech (FR souverain), Sphere XG
- Chiffrement, traçabilité, versioning
- Accès multi-acteurs, audit trails
6) Livrables & transfert
- E57, RCP, RVT, IFC, DWG, PDF QA/QC
- Rapport métrologie + feuille de route O&M
- Support MOA/BET, documentation finale
Qualité, conformité & gouvernance
Référentiels & gestion
ISO 19650 (management informationnel), ISO 9001 (qualité), EN ISO 16739 (IFC). BEP, RACI, WBS, KPIs (RMS, complétude IFC, temps de cycle).
Contrôles QA/QC
Triple validation (géométrie, sémantique, documentaire). Tolérances typiques : structure ±5 mm, second œuvre ±10 mm (à définir au BEP).
HowTo — Standardiser un projet Scan-to-BIM
- Définir le périmètre : zones, LOD, formats (E57/IFC/RVT), tolérances, planning, risques.
- Établir le BEP : gabarits Revit, règles de nommage, attributs IFC, jalons QA.
- Capturer : plan de stations, densité, cibles / RTK, journal d’acquisition.
- Enregistrer : moindres carrés, contrôle RMS, nettoyages & exports.
- Modéliser : familles paramétriques normalisées, classification, LOD.
- Contrôler : déviation nuage↔modèle, clashs, checklist LOD & IFC.
- Publier : United3D.tech / Sphere XG, versions, droits, traçabilité.
- Transférer : livrables signés, rapports QA/QC, accompagnement MOA.
FAQ — Conversion Nuage de points → BIM
Quelles tolérances recommandez-vous ?
Typiquement : structure ±5 mm, second œuvre ±10 mm (à confirmer au BEP selon usage).
Quels formats livrez-vous ?
E57, RCP/RCS, RVT, IFC (4.x), DWG, PDF (rapports QA/QC), orthophotos si requis.
Gérez-vous les sites patrimoniaux ?
Oui : protocoles dédiés (accès, vibrations, zones protégées), workflows HDR, LOD 400-500 si nécessaire.
Comment assurez-vous la qualité ?
Triple contrôle QA/QC (géométrie, sémantique, documentaire) + audits ISO 9001 + traçabilité United3D.tech.
People Also Ask
Quelle est la différence entre Scan-to-BIM et modélisation traditionnelle ?
Le Scan-to-BIM part d’un nuage as-built mesuré, garantissant précision & traçabilité ; la modélisation traditionnelle s’appuie sur plans/mesures manuelles.
Comment définir un LOD adapté à la réhabilitation ?
Aligner LOD sur l’usage (APS/APD/EXE, FM), le risque, et le budget ; documenter tolérances & attributs dans le BEP.
Peut-on intégrer Navisworks/Verity dans le contrôle ?
Oui : clashs et écarts nuage↔modèle pour lever les non-conformités avant diffusion.
Quelles garanties de sécurité et de souveraineté des données ?
Hébergement FR (United3D.tech), chiffrement, accès profilés, journaux d’audit, politique ISO 27001/HDS côté hébergeur.
Tableau — Intentions de recherche & SERP
| Intention | Exemple de requête | H1 / Title tag conseillé | Meta description (≈160c) | Lien interne/externe |
|---|---|---|---|---|
| Informationnelle | processus conversion nuage de points BIM | Comprendre le pipeline Scan-to-BIM | Décryptez les étapes clés pour transformer un nuage de points en maquette BIM fiable. | Modélisation BIM |
| Commerciale | prestataire scan 3D réhabilitation | Prestations Scan 3D pour sites complexes | Nos méthodes certifiées pour relever et modéliser vos ouvrages existants. | Scan 3D industriel |
| Transactionnelle | devis scan to bim | Demandez un devis Scan-to-BIM | Obtenez une estimation en 2 h pour votre projet de conversion nuage → BIM. | Prendre RDV |
| Investigation commerciale | meilleures pratiques LOD 500 as-built | LOD 500 : exigences & contrôles | Découvrez comment garantir un LOD 500 fiable avec contrôles métrologiques. | Démo United3D.tech |
Cas concrets S3D — Réhabilitation & As-Built
Extraits de missions représentatives. Détails supplémentaires disponibles sur demande et sous NDA.
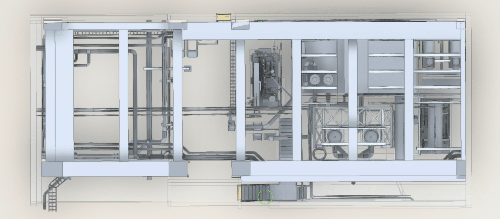
EDF — Bâtiments techniques & circuits auxiliaires
IndustrielRelevés laser haute densité en environnement contraint (HSE), modélisation MEP/structure As-Built pour travaux de réhabilitation.
- Pipeline : FARO Focus/Blink → E57/RCP → Revit/IFC → QA Navisworks
- KPIs : RMS ≤ 2.5 mm ; LOD 350–400 ; 2 400 stations
- Livrables : IFC, RVT, DWG, orthophotos, rapport QA/QC
Yoplait — Lignes process & utilités
AgroalimentaireScan 3D des zones de production en activité, modélisation MEP & supports pour rerouting et mise en conformité.
- Pipeline : FARO Blink HDR → E57 → Revit/IFC + catalogues tuyauterie
- KPIs : précision ±2 mm ; LOD 350 ; 1 100 stations
- Livrables : IFC, isométriques DWG, nomenclatures, rapport métrologie
SNCF — Bogies, ateliers & infrastructures
FerroviaireNumérisation d’ateliers et d’équipements roulants, modélisation précise pour retrofit, ergonomie et sécurité.
- Pipeline : FARO Focus → E57/RCP → Revit/Inventor → Navisworks
- KPIs : déviation moyenne < 3 mm ; LOD 350–400
- Livrables : IFC/RVT, DWG 2D (plans/coupes), check clash
Orano — Zones process & tuyauteries
NucléaireRelevés en environnement sensible, segmentation MEP, préparation de scénarios travaux et préfabrication.
- Pipeline : FARO Focus/Blink → E57 → Revit/IFC 4.x → QA Verity
- KPIs : RMS ≤ 2 mm ; LOD 400 ; 900+ stations
- Livrables : IFC, RVT, nomenclatures, rapports QA (déviations)
✅ Tous les projets S3D sont menés sous ISO 9001, avec publication contrôlée sur United3D.tech et livrables E57 / RCP / RVT / IFC / DWG. Détails, métriques et visuels complets disponibles sous NDA.
